Wellness Bunker

Wellness Bunker je inovativní stavba, která v sobě spojuje nejvyšší standardy bezpečnostního objektu s komfortem wellness zázemí.
Klient
Soukromý
Design
So Concrete
Návrh
2025
Technologie
Digitální beton (robotická fabrikace + HPC)
Umístění
Podzemní / polozapuštěná / nadzemní varianta
Velikost
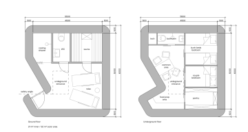
Max. 35 m²,
4–6 osob
Wellness Bunker je inovativní stavba, která v sobě spojuje nejvyšší standardy bezpečnostního objektu s komfortem wellness zázemí. Využívá pokročilou technologii digitálního betonu, která umožňuje vytvořit odolnou, estetickou a plně soběstačnou stavbu s minimálním dopadem na okolní prostředí. Ideální jak pro krizové situace, tak pro každodenní odpočinek.
Wellness Bunker představuje novou generaci úkrytových objektů, které spojují ochrannou funkci s komfortním a estetickým zázemím. Využitím technologie digitálního betonu – tedy kombinace robotické fabrikace a vysokohodnotného betonu (HPC) – vzniká konstrukce, která splňuje vysoké nároky na odolnost, přesnost i architektonickou hodnotu.
Objekt lze realizovat podzemně, polozapuštěně nebo nad terénem, bez negativního zásahu do okolí. Svým nenápadným designem přirozeně zapadá do krajiny a nenese znaky tradičního bunkru – jeho bezpečnostní funkce zůstává skrytá, zatímco vizuálně působí jako elegantní součást prostředí.
Ochrana v době konfliktu
Izolovaný systém (vzduch, voda, odpad, energie)
Ochrana proti chemickým, radiačním i mechanickým hrozbám
Vhodné pro krátkodobý i dlouhodobý pobyt (hodiny až měsíce)
Skladovací prostor pro potraviny, nářadí, cennosti, léky
Využití v době klidu
Wellness prvky: sauna, fitness, relaxační místnost
Psychologické zázemí: pocit bezpečí, soukromí, připravenost
Sklepní využití: víno, potraviny, úschova cenností
Prostor pro každodenní regeneraci a únik od stresu
Wellness Bunker je nejen praktický, ale i inspirativní – nabízí komfortní přístup, vysokou míru soběstačnosti a adaptabilitu podle potřeb uživatele. V krizových situacích poskytuje životně důležité zázemí, v běžném režimu pak vytváří kvalitní prostor pro tělo i duši.






